Sinds 2007 levert Bouwbestel bouwmaterialen via internet. Onze missie is om A-Kwaliteit bouwmaterialen zo te leveren dat u soepel en doeltreffend een optimaal bouwresultaat bereikt. Klanten beoordelen ons gemiddeld met een 9.
vragen?bel ons op 073 50 32 32 6maandag t/m vrijdag van 8:30 - 17:00 uurzaterdag van 8:30 - 13:00 uur(Zie afbeelding onderaan)
Naast wanden kun je met metal stud ook plafonds maken. Metal stud plafonds zijn een simpele oplossing om een mooi plafond in een ruimte te maken. Bovendien is het erg eenvoudig te monteren en af te werken.
Metal stud plafonds worden veel gebruikt om een verlaagd plafond aan te brengen. Bijvoorbeeld als een vloer tussen de balkenlaag geïsoleerd is. Dit wil je uiteraard niet blijven zien en is weg te werken met een metal stud plafond, maar hoe gaat dit precies in zijn werk?
Bereken materiaal voor metal stud plafond
Ben je van plan om een metal stud plafond te maken maar heb je geen idee hoeveel materiaal je daarvoor nodig hebt? Gebruik onze kluscalculator om precies uit te rekenen hoeveel je van elk onderdeel nodig hebt!
Een metal stud plafond maken
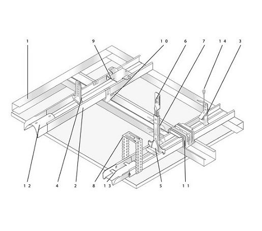
Een metal stud plafond maakt u met rondom in de ruimte U27/27 profielen tegen de wand geschroefd (zie 1), daarop C60/27 gelegd (zie 2) en haaks daarop ook C60/27 profielen (zie 11) in de U27/27 geschoven en met kruisverbinders verbonden aan elkaar. De onderste C60/27 komen "hart op hart" 60cm van elkaar af, zodat later de gipsplaten er op kunnen worden geschroefd.
De bovenliggende U60/27 (zie 2) worden (om de 50cm of 60cm) aan het (betonnen) plafond bevestigd met meestal ankerhanger met veer (3), afhangdraad met haak of oog (zie 14 ) en 5mm plug en 4mm schroefoog.
De onderliggende U60/27 profielen gaan vaak om de 40cm en daartegen worden de gipsplaten weer haaks op aangebracht.
Deze bevestiging aan het plafond kan ook met ankerhanker zonder veer (zie 4) eventueel samen met een snelhanger en plug (met schroefoog / schroefhaak)
Of met een directhanger (zie 8), hiermee valt ook te stellen, eventueel onderuitstekende gedeelten kan je namelijk gewoon terug naar boven / zijkant buigen, zodat ze de gipsplaat niet in de weg gaan zitten. Directhangers bevestig je makkeijk in het betonnen plafond met een subex nagel.
Heeft u een overspanning langer dan 4 meter dan gerbruikt u de lengteverbinders om de C60/27 een elkaar te verbinden (zie 12).
Heeft u vragen over het maken van een metal stud plafond? Neem dan gerust even contact op!

Metal stud plafonds worden vaak afgewerkt met gipsplaten. Wanneer je de gipsplaten wilt gaan monteren, dan is het belangrijk dat je deze goed vastzet. Gipsplaten zijn van zichzelf licht buigend en moeten daarom dus om de twintig centimeter vastgezet worden met een schroef.
Het is belangrijk dat je de gipsplaten in de lengte van de ruimte monteert. Je begint met allemaal hele platen en aan het einde houd je vaak een restmaat over. Als je met 4AK gipsplaten werkt geeft dit in dat geval het mooiste strakke resultaat. AK staat voor het afgeschuinde kant. 4AK gipsplaten hebben aan alle zijdes een afgeschuinde (helllende) zijde. Als 1 gipsplaat de hele overspanning van de ruimte dekt, kan je met gewone AK platen werken. (Deze zijn alleen aan de lange zijde afgeschuind.)
Na het monteren van de gipsplaten kun je de naden en schroefgaten dicht zetten met glasvezelband en (ook schoonheidsfoutjes in de montage) gaan aansmeren met jointfiller met een spackmes of breed plamuurmes. Wanneer de vuller hard is, kun je deze opschuren met schuurgaas en is je plafond klaar om afgewerkt te worden. Dit kan bijvoorbeeld met latex verf of stucwerk.
Als je het proces van naden afwerking wilt overslaan, kan je ook gipsplaten pakken met een ronde zijkant (RK). Vaak worden dan alleen de "schroefgaten" afgewerkt en vervolgens geverfd met latex. Uiteraard blijven dan deze naden wel in het zicht.


